
VSG/R Vacuum Circuit Breaker with Lateral Operating Mechanism is fixed installation. It is mainly used for fixed switchgear. The circuit breaker can be used alone. It is more suitable for ring network power supply, box transformer or various non-standard power supply systems.
Technical Information
Technical Specification |
|
|
|
|
|
|
|
| ||
Rated voltage |
| kV |
| 12 |
| 24 |
| |||
Rated current |
|
| A |
| 630,1250,1600,2500,3150 |
|
| |||
Rated Frequency |
| Hz |
| 50 |
| 50 |
| |||
| Rated insulation level | 1min power frequency withstand voltage | kV |
| 42/48 |
| 65 | ||||
Lightning impulse withstand voltage | kV |
| 75/85 |
| 125 |
| ||||
Rated short circuit breaking current | kA | 20/25 |
| 31.5 |
| 31.5 |
| |||
4S rated short circuit withstand current | kA | 20/25 |
| 31.5 |
| 31.5 |
| |||
Rated peak tolerable current | kA | 50/63 |
| 80 |
| 80 |
| |||
Rated short circuit switching current (peak value) | kA | 50/63 |
| 80 |
| 80 |
| |||
Operation sequence of automatic reclosure |
|
| 分-0.3s-合分-180s-合分 Score-0.3s-Score-180s-Score | |||||||
Arcing time |
| ms |
|
| ≤15 |
|
| |||
Rated short circuit breaking current | Times | 100 |
| 50 |
| 100 |
| |||
Mechanical life |
| Times |
| 20000 |
| 20000 |
| |||
Contact opening (according to vacuum tube) | mm |
| 11±1(9±1) |
| 13±1 |
| ||||
Contact overrun | mm |
| 3.5±0.5 |
| 3±1 |
| ||||
Contact closing bounce time | ms |
| ≤3 |
| ≤2 | |||||
Different Periods of Three-phase Closing | ms |
| ≤2 |
| ≤2 | |||||
Opening speed |
| m/s |
| 0.9~1.5 |
| 0.9~1.7 |
| |||
Closing speed |
| m/s |
| 0.5~0.9 |
| 0.6~1.0 |
| |||
Opening time |
| ms |
| ≤50 |
| 20~50 |
| |||
Closing time |
| ms |
| ≤100 |
| 35~70 |
| |||
Rated current: 630 A |
| μΩ |
| ≤50 |
| ≤45 | ||||
Main circuit resistance | Rated current: 1250 A |
|
|
| ≤40 |
| ≤35 | |||
Interphase centre distance | mm |
| 210±2 |
| 210,270,275 | |||||
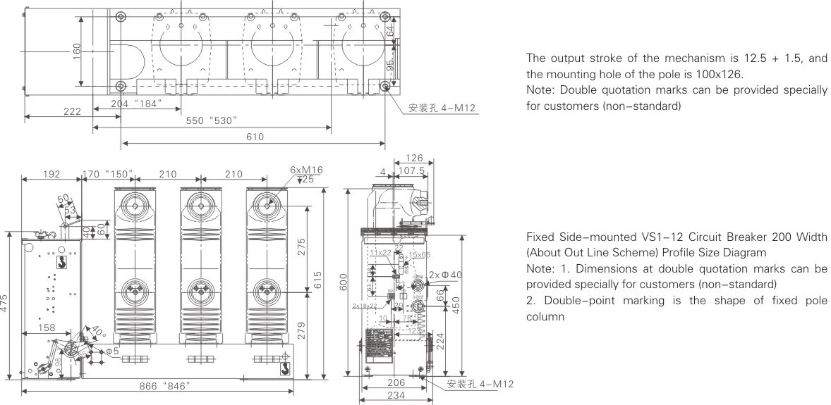
Overall and installation dimensions
?
Copyright ? Zhejiang Xikai Electric Co. , Ltd. 技術支持:鼎諾傳媒